Тел.: (812) 933-39-18
МЫ НЕ РАЗДУВАЕМ СКИДКИ,
У НАС ПРОСТО ЛУЧШИЕ ЦЕНЫ
Главная страница
Услуги
Загородные дома и коттеджи
Каркасные дома
Дома из бруса и бревна
Строительство кирпичных домов
Строительство бань
Пристройки, беседки, веранды, ремонт
Возведение фундаментов
Утепление дома
Печи и камины
Строительство заборов
Окна ПВХ
Демонтажные работы
Водоснабжение, отопление, электрика
Электрика
Типовые решения. Стоимость
Готовые проекты
Дом Sобщ.=192.8 м. кв.
Дом Sобщ.=166.3 м кв.
Дом Sобщ.=138.3 м кв.
Дом Sобщ.=86 м кв.
Дом Sобщ.=72 м кв.
Дом Sобщ.=36 м кв.
Дом Sобщ.=31.5 м кв.
Выполненные объекты
Контакты
>
Готовые проекты
>
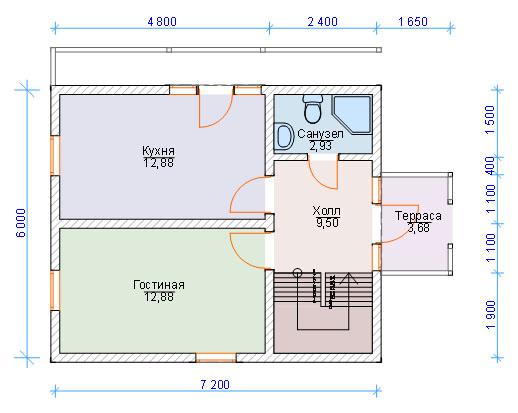
Дом Sобщ.=86 м кв.
Дом Sобщ.=86 м кв.
Цена: от 600 тыс.руб.
Выполненные объекты